Zum Hauptinhalt springen

Meva, ML

EUR 535,50

inkl. USt. zzgl. Versandkosten

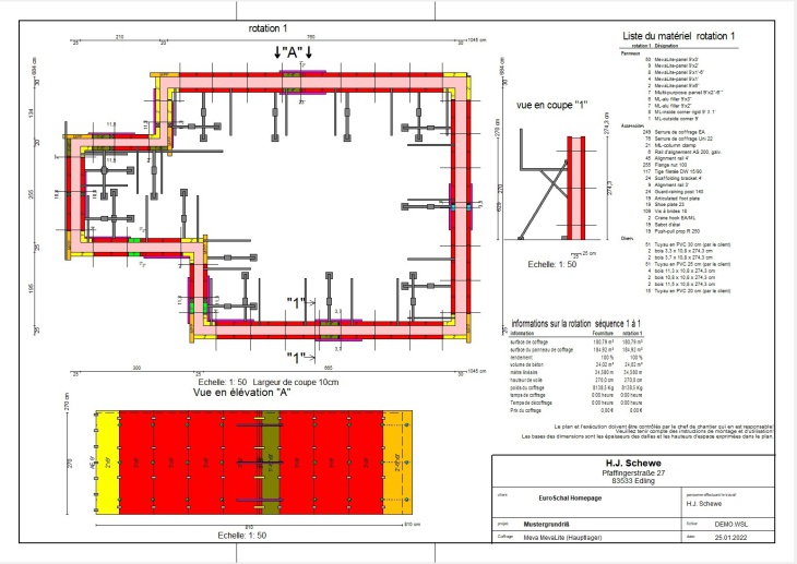
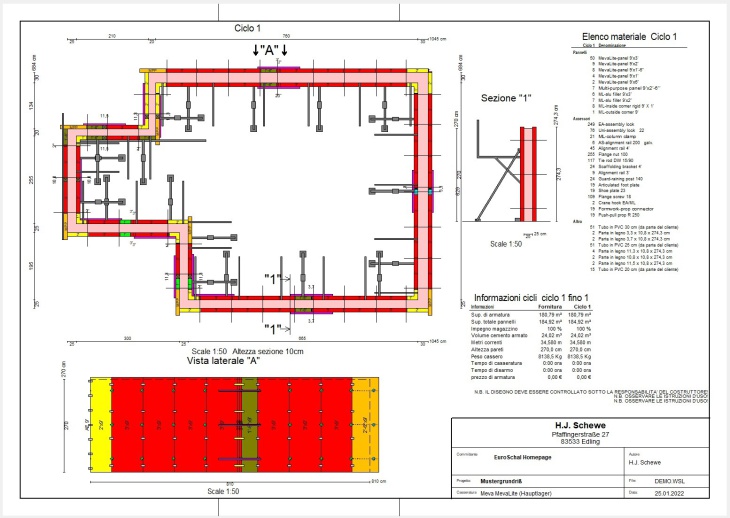
Schalungslager für EuroSchal. Sie müßen jetzt noch ein Schalungsprogramm Wand Vollversion oder Update hinzufügen.