Zum Hauptinhalt springen

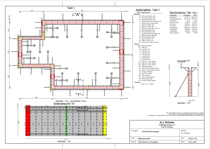
Altrad RMD KWIKFORM, Rapid Ply

EUR 450,00

incl. Tax, excl. Shipping

Formwork bearing for EuroSchal. You must now add a formwork programme wall full version or update.