Zum Hauptinhalt springen

Diamantreisen RUSSIA, Mini Wolna cassaforma

EUR 450,00

senza tasse più la spedizione

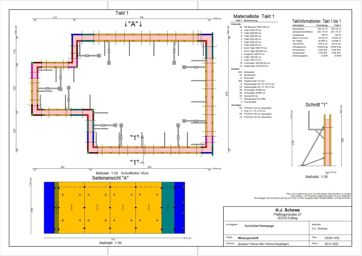
Cuscinetto per casseforme per EuroSchal. Ora è necessario aggiungere un programma di casseforme per pareti versione completa o aggiornamento.